Na prodaju

VRAČAR LUX NOVOGRADNJA Izuzetna lokacija mirna jednosmerna ulica

549.000 EUR
Vračar , Beograd
Broj soba 4
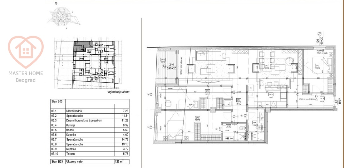
Povrsina 122 m2
Sprat 2
Ukupno spratova 6

Opis

VRAČAR KALENIĆ, Loznička, nova oaza za život u jednoj od najlepših ulica na Vračaru. Predstavlja spoj svedenog luksuza i savremenog života i krasiće ga stambene jedinice koje su oplemenjene izdašnim otvorenim životnim prostorom uz ugradnju najkvalitetnijih materijala. U ovoj vrhunskoj novogradnji prodajemo četvorosoban stan od 122m2 sa terasom, CG, II sprat od VI, Lift. Stan je funkcionalan i savremeno dizajniran. Ulica je prelepa,mirna, jednosmerna, sa svake strane ulice nalazi se drvored. U neposrednoj blizini je Kalenić pijaca ali i Bulevar ČKralja Aleksandra, ovaj deo grada je poznat po svojoj bogatoj istoriji, prelepim parkovima, poznatim restoranima, buticima i kulturnim institucijama. Sve što vam je potrebno je na dohvat ruke vrhunska lokacija. Topla preporuka. Pouzdan investitor sa kojim imamo dugogodišnju uspešnu saradnju. CENA 549.000 eur Garažno mesto je moguće kupiti po ceni od 40.000EUR Pozovite nas za sve detaljnije informacije. KONTAKT 060 01 468 16

Osnovne informacije

Broj soba 4
Lift Da
Povrsina 122 m2
Godina izgradnje 2024
Kuhinja Ne
Garaza Ne
Basta Ne
Cena 549.000 EUR
Sprat 2
Namestaj Ne
Terasa Da
Ukupno spratova 6

Dodatno

  • Terasa
  • Lift
Prodaje se stan na dugom spratu u ulici Loznička površine 122m2. Stan ima balkon. Prodaja stanova...