Na prodaju

VETERNIČKA RAMPA, 107m2+krovna terasa, Petosoban sa pdv, Kredit

211.500 EUR
Veternička Rampa , Novi Sad , Južnobački okrug
Broj soba 5
Povrsina 107 m2
Sprat 2
Ukupno spratova 2

Opis

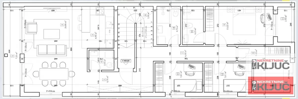
Prodaje se 5.0 stan u NOVOM SADU, VETERNIČKA RAMPA površine 107m2. Stan je u izgradnji. Cena stana je sa pdv. Stan ima mogučnost izlaska na krovnu terasu koju možete prilagoditi po želji. Mogučnost kupovine stana putem stambenog kredita. Stan se nalazi u blizini glavne saobraćajnice Dragoslava Srejovića. Dobro je povezan sa ostalim delovima grada. Svi potrebni sadržaji su u blizini stana. Odličan kvalitet gradnje i opreme. Kupite ovaj funkcionalan stan jedini preostao u objektu. Pozovite i obiđite nekretninu.

Osnovne informacije

Broj soba 5
Lift Ne
Povrsina 107 m2
Godina izgradnje
Kuhinja Ne
Garaza Ne
Basta Ne
Cena 211.500 EUR
Sprat 2
Namestaj Ne
Terasa Ne
Ukupno spratova 2

Dodatno

Prodaje se stan površine 107m2 na dugom spratu. Stan ima terasu, etažno grejanje. Prodaja stanova...