Na prodaju

Trosoban stan, 82 m2, Centar, Zmaj Jovina ID: p-011468

148.650 EUR
Centar , Čačak , Moravički okrug
Broj soba 3
Povrsina 82 m2
Sprat 5
Ukupno spratova 0

Opis

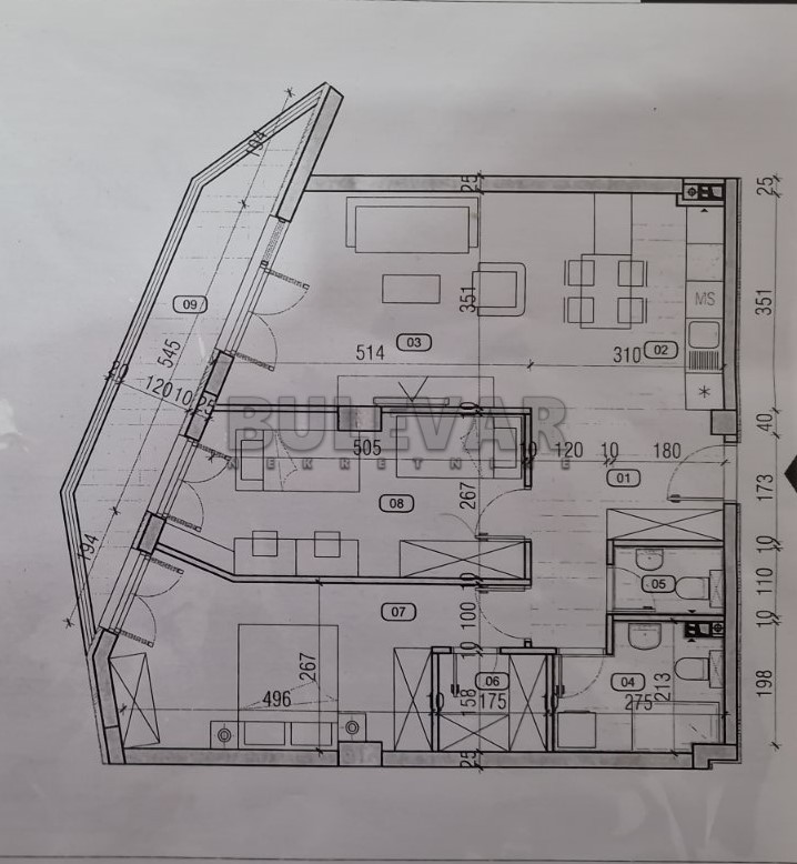
U ekskluzivnoj zoni, nadomak samog, strogog, centra grada, na prodaju stan u izgradnji površine 82,57 m2. Stan se nalazi na petom spratu zgrade spratnosti Po+P+Gal.+6+Ps. Moderno projektovana stambena zgrada radi se po vrhunskim standardima. Na podovima u spavaćim sobama planirano je postavljanje višeslojnog, masivnog poda za podno grejanje – tarketa debljine od 14-16 mm. a u ostalim prostorijama je keramika vrhunskih svetskih proizvođača. Podno grejanje,kotlovi renomiranog proizvođača, kondezacioni. Sigurnosna ulazna vrata sa zvučnom izolacijom. Furnirana untrašnja vrata sa magnetnim bravama i skrivenim šarkama, Stolarija PVC sedmokomorni profili renomiranog proizvođača, sa troslojnim staklom i aluminijumskim roletnama sa elektropodizačima. Stan, pored hodnika, dnevnog boravka i kuhinje ima i dve spavaće sobe, garderober, kupatilo, toalet i terasu. Postoji mogućnost i kupovine garažnog mesta po ceni od 10.000 evra plus PDV. Grejanje je na gas, a planirano je i postavljenje klima uređaja. Stan se kupuje od firme pa postoji mogućnost povraćaja PDV-a ukoliko je kupac u sistemu PDV-a. Izražena cena je bez uračunatog PDV-a. Mogućnost dogovora oko kupovine putem stambenog kredita. Za sve informacije i razgledanje stojimo vam na raspolaganju, radnim danima od 09-19h i subotom od 09-17h. Ovu i druge nekretnine sa većim brojem fotografija možete pogledati na našem sajtu: bulevarnekretnine.rs, kontakt: info@bulevarnekretnine.rs, usluga besplatna. Čekamo Vas. Telefon 034/330808 i 060/0544253. Bulevar Nekretnine 034, Kragujevac, broj u registru posrednika: 1278.

Osnovne informacije

Broj soba 3
Lift Ne
Povrsina 82 m2
Godina izgradnje
Kuhinja Ne
Garaza Ne
Basta Ne
Cena 148.650 EUR
Sprat 5
Namestaj Ne
Terasa Ne
Ukupno spratova 0

Dodatno

Prodaje se trosoban stan površine 82m2 na petom spratu u ulici Zmaj Jovina. Stan ima etažno grejanje. Prodaja stanova...