Na prodaju

Trosoban stan, 63.94 m2, Trošarina, Marina Držića ID: p-014283

118.289 EUR
Trošarina , Palilula , Nišavski okrug
Broj soba 3
Povrsina 63.94 m2
Sprat 1
Ukupno spratova 0

Opis

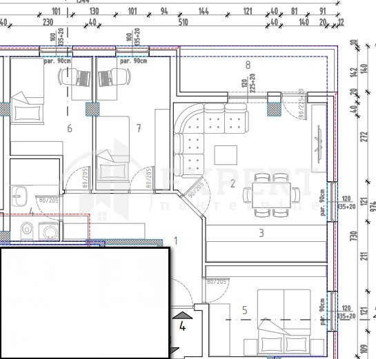
Na prodaju stan u izgradnji u stambenoj zgradi PO+PR+3, sa 14 stambenih jedinica. Zgrada se nalazi u mirnoj ulici na Trošarini u blizini osnovne škole, obdaništa, PMF-a, Bogoslovije... Odlična investicija, kako za stanovanje, tako i za izdavanje. Stan je po strukturi troiposoban, površine 63.94 m2. Sastoji se od hodnika, dnevne sobe sa kuhinjom i trpezarijom, tri spavaće sobe, kupatila i terase. Stan se nalazi na prvom spratu zgrade sa liftom, na podovima je parket, u kuhinji i kupatilu kvalitetna keramika, PVC stolarija sa roletnama, grejanje i hlađenje inverter klimama. Završetak radova je predviđen za 01.10.2026. godine. Parking mesta u dvorištu i podzemnoj garaži se naknadno naplaćuju. Objekat je u fazi rekonstrukcije i izgradnje, tako da će pojedine stambene jedinice imati određeni procenat povraćaja PDV-a za kupce prvog stana. Ovo je samo deo naše ponude, za više informacija javite se i posetite naš sajt.

Osnovne informacije

Broj soba 3
Lift Da
Povrsina 63.94 m2
Godina izgradnje
Kuhinja Ne
Garaza Ne
Basta Ne
Cena 118.289 EUR
Sprat 1
Namestaj Ne
Terasa Da
Ukupno spratova 0

Dodatno

  • Terasa
  • Lift
Prodaje se trosoban stan površine 63.94m2 u ulici Marina Držića na prvom spratu. Stan ima balkon. Prodaja stanova...