Na prodaju

top lokacija

111.355 EUR
Inđija , Srem
Broj soba 3
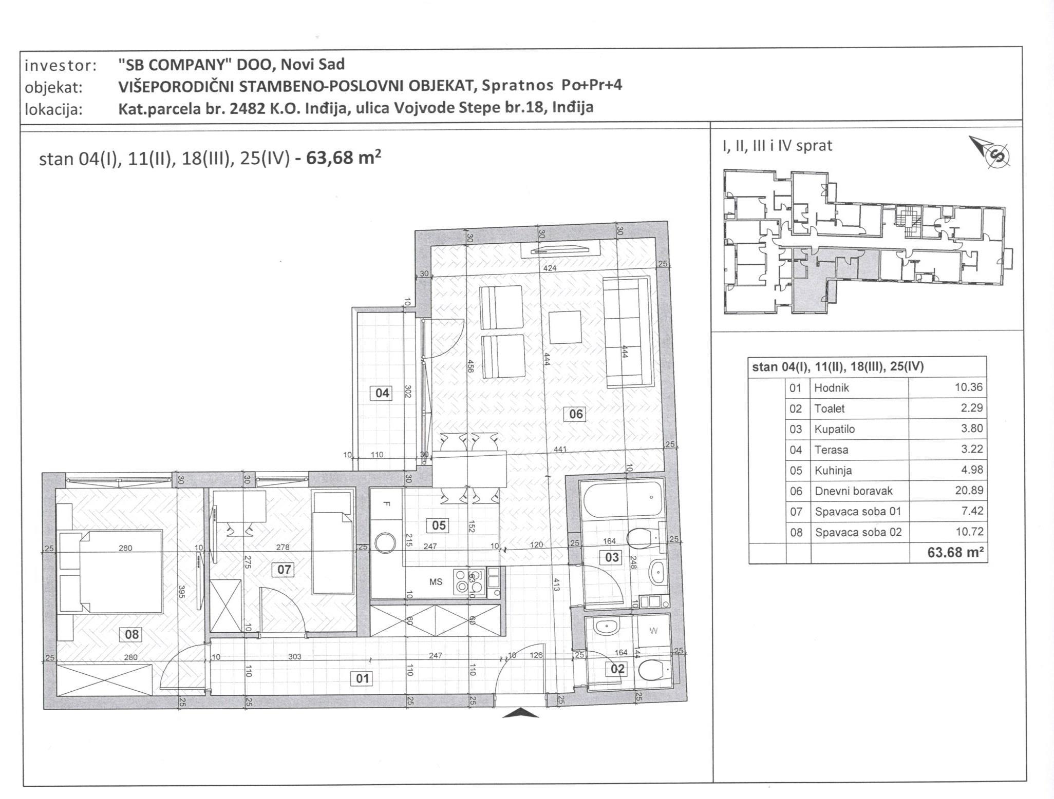
Povrsina 63 m2
Sprat 1

Opis

Avant Garden je elitni stambeno poslovni objekat koji se nalazi u samom centru Indjije šetališna zona. Savršeno mesto za život u blizini pošte, doma zdravlja, skola, vrtića, velikih marketa... Mesto na kom ćete osetiti privilegije savremenog života. Novi vid stanovanja koji podrazumeva PAMETNU ZGRADU i dodatne sadržaje TERETANU, SPA CENTAR, DEČIJE IGRALIŠTE, PODZEMNU GARAZU Alminijumska stolarija, podno grejanje, granitna keramika, moderno dizajniran ulazni hol i hodnici, led osvetljenje sa senzorima, video nadzor samo su deo onoga što nudimo......

Osnovne informacije

Broj soba 3
Lift Da
Povrsina 63 m2
Godina izgradnje 2023
Kuhinja Ne
Garaza Ne
Basta Da
Cena 111.355 EUR
Sprat 1
Namestaj Ne
Terasa Da
Ukupno spratova

Dodatno

  • Basta
  • Terasa
  • Lift
Prodaje se trosoban stan u ulici Vojvode Stepe na prvom spratu površine 63m2. Stan ima balkon...