Na prodaju

TELEP, 61m2, Trosoban sa pdv, Izgradnja

165.100 EUR
Telep , Novi Sad , Južnobački okrug
Broj soba 3
Povrsina 61 m2
Sprat 3
Ukupno spratova 3

Opis

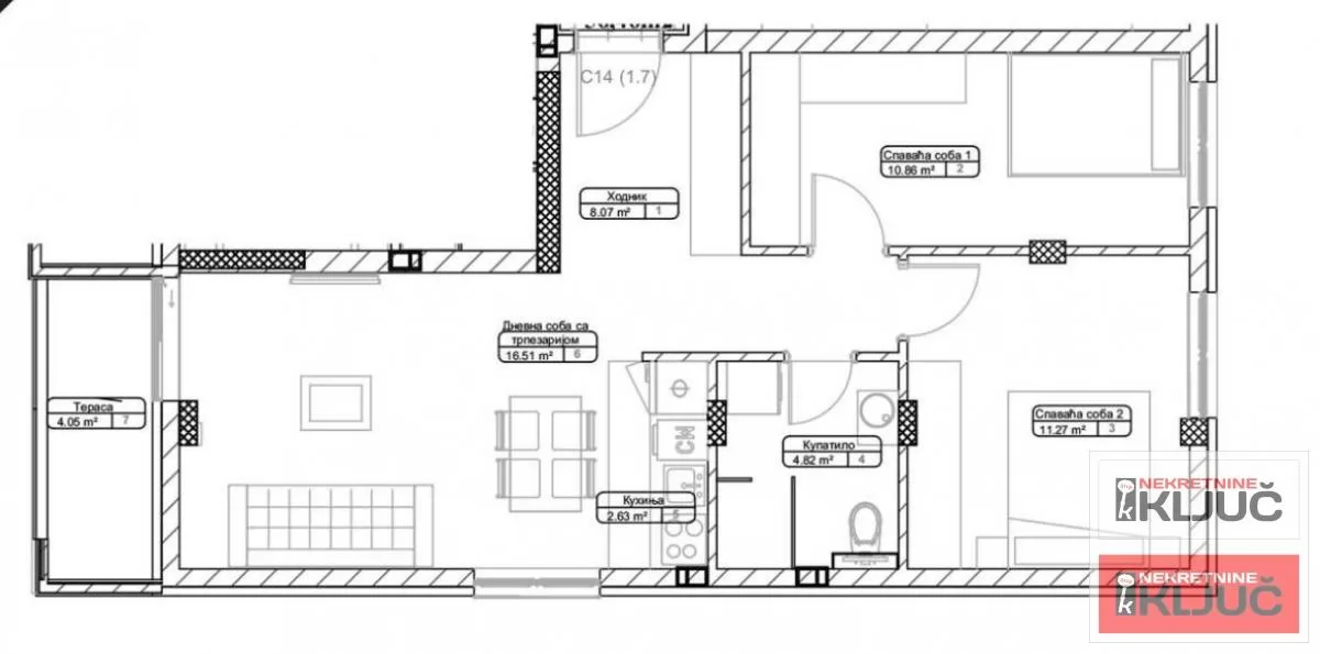
Prodaje se 3.0 stan u NOVOM SADU, TELEP površine 61m2. Stan je u izgradnji. Cena stana je sa pdv. izuzetna funkcionalnost. Nalazi se u mirnoj ulici nadomak glavne saobraćajnice Heroja Pinkija. Odlična povezanost sa Limanima kao i sa ostalim delovima grada. Objekat vrhunskog kvaliteta i opreme. Blizina svih potrebnih sadržaja za život. Ulica sklonjena od buke i saobračaja. Cena stana je sa agencijskom uslugom. Pozovite i postanite vlasnik ove nekretnine.

Osnovne informacije

Broj soba 3
Lift Da
Povrsina 61 m2
Godina izgradnje
Kuhinja Ne
Garaza Ne
Basta Ne
Cena 165.100 EUR
Sprat 3
Namestaj Ne
Terasa Ne
Ukupno spratova 3

Dodatno

  • Lift
Prodaje se trosoban stan površine 61m2 na trećem spratu. Stan ima terasu, etažno grejanje. Prodaja stanova...