Na prodaju

Stan,PETROVARADIN,PETROVARADIN 53m2,117000€ , ID: 1061845

117.000 EUR
Petrovaradin , Novi Sad , Južnobački okrug
Broj soba 2.5
Povrsina 53 m2
Sprat Prizemlje
Ukupno spratova 5

Opis

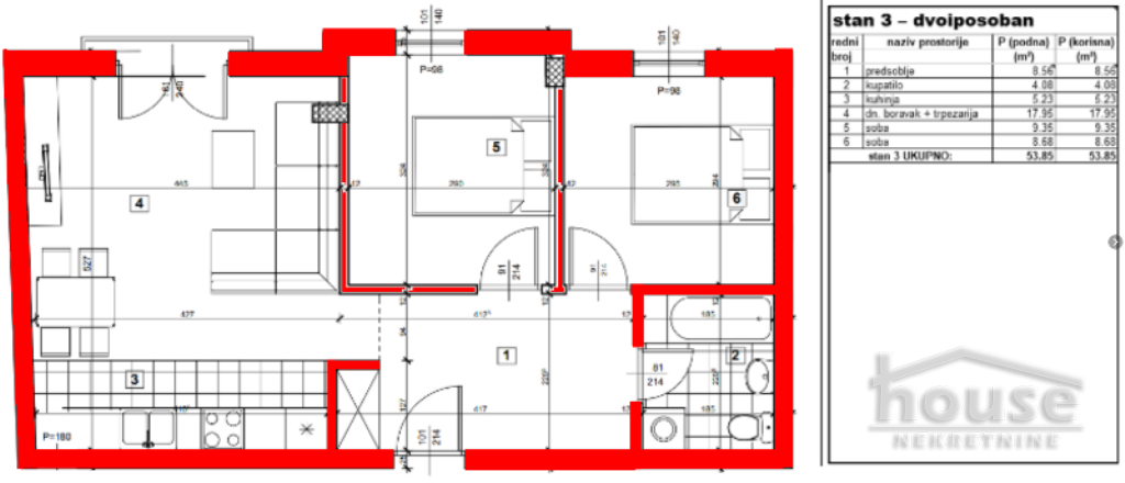
Odličan, bez ulaganja, dvoiposoban, povoljan+++Agencijska oznaka 1061845. Oglašavamo prodaju dvoiposobnog stana od 53m2. Stan se nalazi na visokom prizemlju, funkcionalnog rasporeda, Iz hodnika se ulazi u dve srazmerne sobe, kupatilo, prostranu dnevnu sobu sa trpezarijom, kuhinju... Mirna lokacija, puna sadržaja, dobra povezanost sa centrom grada.  Kontakt osoba Svetlana, telefon 069/23-698-23, broj licence 727, 021/546-282, 021/546-645 House nekretnine, Novi Sad, reg. br.200. Kompletna ponuda na www.house-nekretnine.com

Osnovne informacije

Broj soba 2.5
Lift Da
Povrsina 53 m2
Godina izgradnje 2019
Kuhinja Ne
Garaza Ne
Basta Ne
Cena 117.000 EUR
Sprat Prizemlje
Namestaj Ne
Terasa Ne
Ukupno spratova 5

Dodatno

  • Lift
Prodaje se dvosoban stan površine 53m2