Na prodaju

Stan,NOVI SAD,TELEP,kv: 143.00, € 353500, ID: 1099049

353.500 EUR
Telep , Novi Sad , Južnobački okrug
Broj soba 5
Povrsina 143 m2
Sprat 2
Ukupno spratova 0

Opis

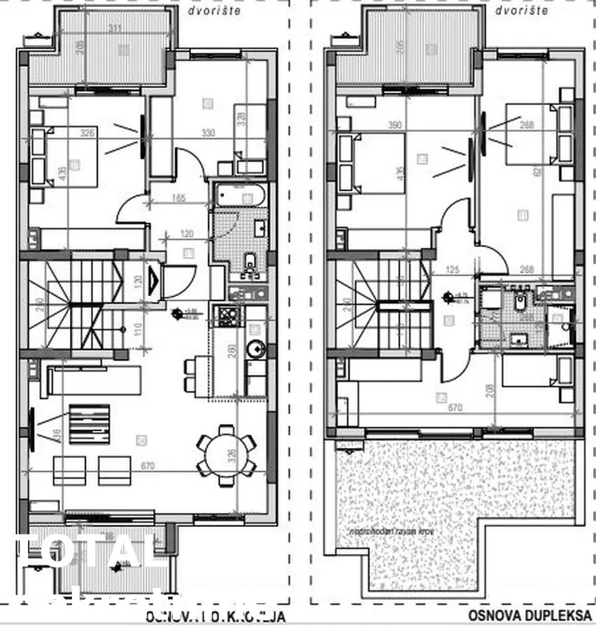
Agencijska oznaka 1099049 - Prodaje se petosoban stan u dva nivoa, u izgradnji, sa PDV-om, u urbanoj vili na Telepu. Stan je u mirnoj ulici ali lokacijski odličan zbog blizine svih sadržaja neophodnih za život. Keramičke pločice većih dimenzija (120cm x 120cm, 60cm x 60cm) su odabrane pažljivo iz asortimana prestižnog italijanskog i španskog proizvođača. Hrastov parket - Tara concept. Sanitarije Hansgrohe, Vileroy Bosch. Kombinovana PVC - aluminijumska antracit stolarija sa troslojnim staklom. Svaka stambena jedinica je posebna celina u smislu grejanja. Bosch kondenzacioni gasni kotao priprema zagrevanje tople vode uz minimalnu potrošnju energije i maksimalnu uštedu. Midea invertorski klima uredjaj. Korišćen je najkvalitetniji Klima blok na tržištu, što omogućava maksimalne rezultate u smislu termičke i zvučne izolacije Elektronski podizači roletni. Klupice na prozorima i na terasama urađene od mermera. Sigurnosni sistem kamera. Mogućnost kupovine garaže ili parking mesta u dvorištu. GRATIS KROVNA TERASA OD 30M2. BEZ KROVNIH PROZORA I KOSINA. ZA VIŠE INFORMACIJE POZVATI SANDRA 064-231-1602

Osnovne informacije

Broj soba 5
Lift Ne
Povrsina 143 m2
Godina izgradnje
Kuhinja Ne
Garaza Ne
Basta Ne
Cena 353.500 EUR
Sprat 2
Namestaj Ne
Terasa Da
Ukupno spratova 0

Dodatno

  • Terasa
Prodaje se stan na dugom spratu površine 143m2. Stan ima balkon, terasu...