Na prodaju

Stan,NOVI SAD,TELEP 149m2,368330€ , ID: 1062198

368.330 EUR
Telep , Novi Sad , Južnobački okrug
Broj soba 5
Povrsina 149 m2
Sprat 2
Ukupno spratova 2

Opis

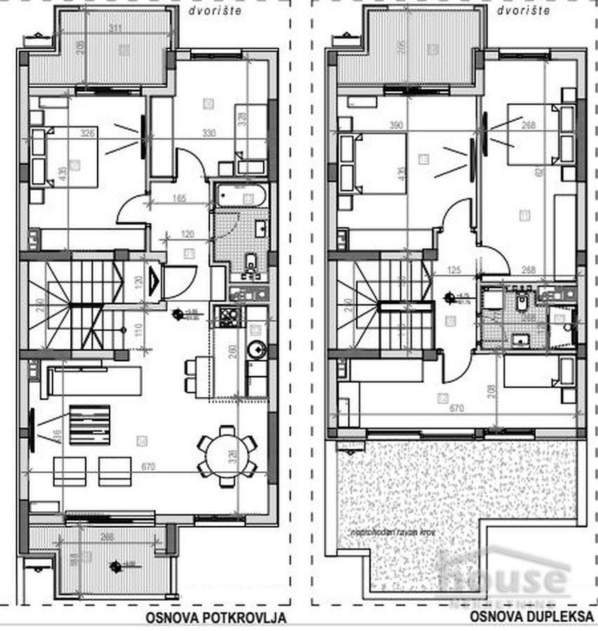
Agencijska oznaka 1062198 - Prodaje se petosoban  stan u dva nivoa,  u izgradnji, sa PDV-om,  u urbanoj vili na Telepu.  Stan je u mirnoj ulici ali lokacijski odličan zbog blizine svih sadržaja neophodnih za život. Keramičke pločice većih dimenzija (120cm x 120cm, 60cm x 60cm) su odabrane pažljivo iz asortimana prestižnog italijanskog i španskog proizvođača.Hrastov parket - Tara concept.Sanitarije Hansgrohe, Vileroy Bosch.Kombinovana PVC - aluminijumska antracit stolarija sa troslojnim staklom.Svaka stambena jedinica je posebna celina u smislu grejanja. Bosch kondenzacioni gasni kotao priprema zagrevanje tople vode uz minimalnu potrošnju energije i maksimalnu uštedu.Midea invertorski klima uredjaj.Korišćen je najkvalitetniji Klima blok na tržištu, što omogućava maksimalne rezultate u smislu termičke i zvučne izolacijeElektronski podizači roletni.Klupice na prozorima i na terasama urađene od mermera.Sigurnosni sistem kamera. Mogućnost kupovine garaže ili parking mesta u dvorištu. GRATIS KROVNA TERASA OD 30M2. BEZ KROVNIH PROZORA I KOSINA.   ZA VIŠE INFORMACIJE POZVATI SANDRA 064-231-1602

Osnovne informacije

Broj soba 5
Lift Ne
Povrsina 149 m2
Godina izgradnje 2024
Kuhinja Ne
Garaza Da
Basta Ne
Cena 368.330 EUR
Sprat 2
Namestaj Ne
Terasa Da
Ukupno spratova 2

Dodatno

  • Terasa
Prodaje se stan površine 149m2 na dugom spratu. Stan ima garažu, balkon, terasu. Prodaja stanova...