Na prodaju

Stan,NOVI SAD,STANICA,kv: 57, € 123600, ID: 1024922

123.600 EUR
Novi Sad , Južnobački okrug
Broj soba 2
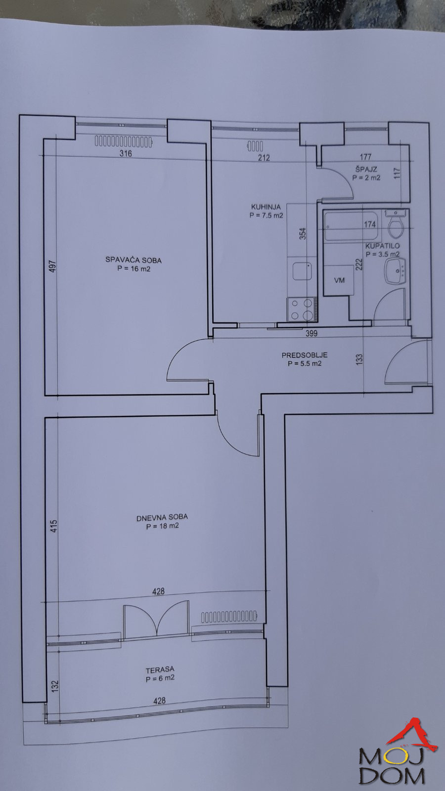
Povrsina 57 m2
Sprat 2
Ukupno spratova 5

Opis

Otkrijte savršeni dom u Novom Sadu na Rotkvariji! Nudimo vam prelep stan od 57m2, smešten u blizini železničke stanice, stan nudi ne samo udobnost, već i izuzetnu investiciju. U kvalitetnoj zgradi, ovaj prostrani stan ima klasičan raspored, pružajući vam funkcionalan i prijatan prostor. Smešten u mirnoj ulici, okružen mnogo zelenila, pruža vam oazu spokoja u neposrednoj blizini gradske vreve. Sa svega 10 minuta udaljenosti do centra grada, ovaj dom predstavlja savršenu ravnotežu između urbanog života i mirnog okruženja. Stan je opremljen podrumom i terasom, pružajući vam dodatni prostor za skladištenje i opuštanje na otvorenom. Povezanost sa susednim stanom jednim zidom obezbeđuje privatnost i osećaj sigurnosti. Ovo je prilika za dobru investiciju u kvalitetan životni prostor. Osetite toplinu doma u ovoj predivnoj nekretnini koja će zadovoljiti sve vaše potrebe. Pozovite nas danas i zakoračite u svoj novi životni prostor na idealnoj lokaciji! Za sve dodatne informaicje kontaktirajte nas: 063304062 Šifra: 1024922 (Moj Dom nekretnine, Novi Sad, Reg.br. 174) Discover the perfect home in Novi Sad on Rotkvarija! We offer you a beautiful 57m2 apartment, located near the railway station. The apartment not only provides comfort but also represents an exceptional investment. In a quality building, this spacious apartment has a classic layout, offering you a functional and pleasant space. Located in a quiet street, surrounded by greenery, it provides an oasis of tranquility close to the city buzz. Just 10 minutes away from the city center, this home strikes the perfect balance between urban life and a peaceful environment. The apartment comes with a basement and a terrace, providing you with additional space for storage and outdoor relaxation. Connectivity with the neighboring apartment through one shared wall ensures privacy and a sense of security. This is an opportunity for a good investment in a quality living space. Feel the warmth of home in this wonderful property that will meet all your needs. Call us today and step into your new living space in the ideal location! For additional information, contact us: 063304062 Code: 1024922 (Moj Dom nekretnine, Novi Sad, Reg.br. 174) Откройте для себя идеальный дом в Нови Саде на Роткварии! Мы предлагаем вам красивую квартиру площадью 57 м2, расположенную недалеко от железнодорожной станции. Квартира не только обеспечивает комфорт, но также представляет собой исключительную инвестицию. В качественном здании эта просторная квартира имеет классическую планировку, предоставляя вам функциональное и приятное пространство. Находясь в тихой улице, окруженной зеленью, здесь вы найдете оазис тишины в непосредственной близости от городской суеты. Всего в 10 минутах от центра города, этот дом находится в идеальном балансе между городской жизнью и спокойной обстановкой. Квартира оснащена подвалом и террасой, предоставляя вам дополнительное пространство для хранения и отдыха на открытом воздухе. Соединение с соседней квартирой одной общей стеной обеспечивает конфиденциальность и чувство безопасности. Это отличная возможность для успешного инвестирования в качественное жилье. Почувствуйте тепло дома в этом замечательном объекте, который удовлетворит все ваши потребности. Позвоните нам сегодня и вступите в свое новое пространство для жизни в идеальном месте! Для получения дополнительной информации свяжитесь с нами: 063304062 Код: 1024922 (Moj Dom nekretnine, Novi Sad, Reg.br. 174)
(Moj Dom nekretnine,Novi Sad,Reg.br.174)

Osnovne informacije

Broj soba 2
Lift Ne
Povrsina 57 m2
Godina izgradnje 1975
Kuhinja Ne
Garaza Ne
Basta Ne
Cena 123.600 EUR
Sprat 2
Namestaj Ne
Terasa Da
Ukupno spratova 5

Dodatno

  • Terasa
Prodaje se dvosoban stan na dugom spratu površine 57m2. Stan ima balkon, terasu. Prodaja stanova...