Na prodaju

Stan,NOVI SAD,NOVO NASELJE - BISTRICA 49m2,114500€ , ID: 1062332

114.500 EUR
Novi Sad , Južnobački okrug
Broj soba 2.5
Povrsina 49 m2
Sprat Prizemlje
Ukupno spratova 5

Opis

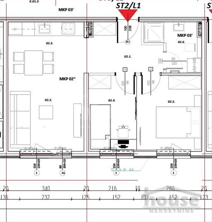
Agencijska oznaka - 1062332 - Dvoiposoban stan u izgradnji na Novom Naselju. Stan se sastoji iz dnevnog boravka sa kuhinjom, dve sobe i kupatila. Grejanje je centralno gradsko. U okruženju se nalazi osnovna škola, pijaca i više supermarketa i dovoljno parking mesta. Više informacija na 064 823 66 36. Buda

Osnovne informacije

Broj soba 2.5
Lift Da
Povrsina 49 m2
Godina izgradnje 2020
Kuhinja Ne
Garaza Ne
Basta Ne
Cena 114.500 EUR
Sprat Prizemlje
Namestaj Ne
Terasa Ne
Ukupno spratova 5

Dodatno

  • Lift
Prodaje se dvosoban stan površine 49m2