Na prodaju

Stan,NOVI SAD,KLISA 71m2,117010€ , ID: 1061969

117.010 EUR
Klisa , Novi Sad , Južnobački okrug
Broj soba 3.5
Povrsina 71 m2
Sprat 2
Ukupno spratova 3

Opis

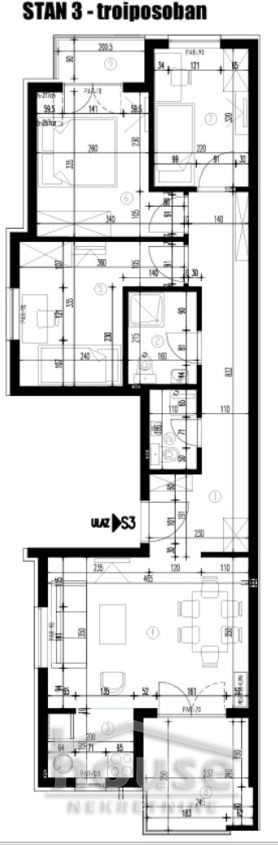
Agencijska oznaka - 1061969 - Troiposoban stan na Klisi. Orijentisan na tri strane. Kuhinja odvojena i ima svoj prozor, trpezarija u sklopu dnevne sobe, 3 spavaće sobe, dva mokra čvora, dve terase. Grejanje etažno na gas, mali račun. U cenu uračunato parking mesto u dvorištu zgrade. Više informacija na 064 823 66 36. Buda

Osnovne informacije

Broj soba 3.5
Lift Ne
Povrsina 71 m2
Godina izgradnje
Kuhinja Ne
Garaza Ne
Basta Ne
Cena 117.010 EUR
Sprat 2
Namestaj Ne
Terasa Da
Ukupno spratova 3

Dodatno

  • Terasa
Prodaje se trosoban stan na dugom spratu površine 71m2. Stan ima balkon, terasu, grejanje na gas...