Na prodaju

Stan,NOVI SAD,GRBAVICA,kv: 52.00, € 140000, ID: 1100628

140.000 EUR
Grbavica , Novi Sad , Južnobački okrug
Broj soba 2.5
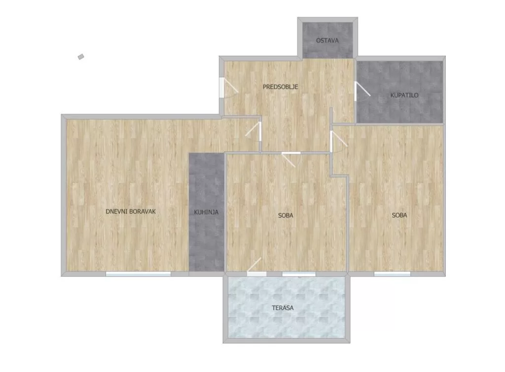
Povrsina 52 m2
Sprat Prizemlje
Ukupno spratova 0

Opis

GRBAVICA, RENOVIRAN, MIRNO ZA STANOVANJE +++Agencijska oznaka 1100628. Cena stana je bez agencijske provizije 3%. U prodaji manji dvoiposoban stan na traženoj lokaciji Grbavice. Stan ima uknjiženih na 52m2 i ima jos 6m2 terase . Orjentisan je ka dvorišnoj starni gde je izuzetno mirno i puno zelenila . U dvorištu ima mesta za parkiranje skoro uvek . Stan je kompletno renoviran i odmah useljiv . Stan se sastoji od dve spavaće sobe , kupatilo, dnevni boravak sa kuhinjomi , predsoblje , ostava i prelepa terasa. Nekretnina je uknjižena i odmah useljiva . Za gledanje i iviše informacija pozvati na 0641709174 Mila

Osnovne informacije

Broj soba 2.5
Lift Ne
Povrsina 52 m2
Godina izgradnje
Kuhinja Ne
Garaza Ne
Basta Ne
Cena 140.000 EUR
Sprat Prizemlje
Namestaj Ne
Terasa Da
Ukupno spratova 0

Dodatno

  • Terasa
Prodaje se dvosoban stan površine 52m2. Stan ima balkon, terasu. Prodaja stanova...