Na prodaju

Stan,NOVI SAD,CENTAR,kv: 163, € 545900, ID: 1018958

545.900 EUR
Centar , Novi Sad , Južnobački okrug
Broj soba 5
Povrsina 163 m2
Sprat 2
Ukupno spratova 5

Opis

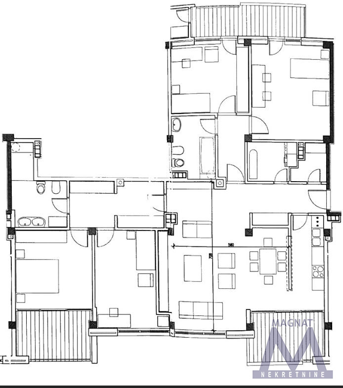
Novi Sad - centar - blizina suda i spensa, na prodaju fantastičan petosoban stan od 163m2, novija zgrada sa liftom, uknjižen. Stan ima odličan raspored, dvostrano je orijentisan, sastoji se od hodnika, velike dnevne sobe sa trpezarijom i kuhinjom, četiri spavaće sobe, dva kupatila, tri terase, vešernice i ostave. Mogućnost kupovine garaže u dvorištu od 17m2. Nalazi se na izuzetnoj lokaciji, u novijoj kvalitetnoj zgradi i prava je retkost na tržištu. Za više informacija pozovite 060-6211-685 Peđa (Agencija za nekretnine MAGNAT-NS, Novi Sad, Reg. br. 1497)

Osnovne informacije

Broj soba 5
Lift Da
Povrsina 163 m2
Godina izgradnje 2008
Kuhinja Ne
Garaza Da
Basta Ne
Cena 545.900 EUR
Sprat 2
Namestaj Ne
Terasa Da
Ukupno spratova 5

Dodatno

  • Terasa
  • Lift
Prodaje se stan na dugom spratu površine 163m2. Stan ima garažu, balkon, terasu...