Na prodaju

Stan na prodaju

55.440 EUR
Leskovac , Jablanički okrug
Broj soba 2
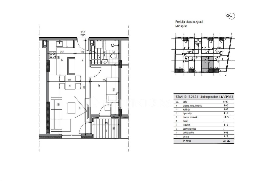
Povrsina 42 m2
Sprat 4

Opis

U prilici smo da Vam ponudimo moderne stanove u novogradnji, u Centru Leskovca. Uživajte u mirnom delu centra grada, na par koraka od svih zbivanja. Lokacija je savršena za Vaš novi dom, obzirom da se na par koraka nalaze svi najveći marketi, trzni centar Capitol Park , pijaca, škole i vrtići, apoteke. U prilici smo da Vam ponudimo 34 stanova, različitih struktura i kvadratura počev od 42 do 75 m2. Zgrada je spratnosti Prizemlje 4 sprata, sa podzemnom garažom. Zgrada je opremljena liftom. Moderan dizajn i visoki kvalitet izgradnje kako entrijera tako i ektsterijera, upotreba savremenih građevinskih materijala, kao i pouzdanost i sigurnost kupovine, razlikuju ovu zgradu od drugih u ovom gradu. Cena je izražena po m2 sa uračunatim PDV om, koji iznosi 10 . Kupci prvog stana imaju pravo povraćaja PDV a. Više na sajtu https bminvest.rs . Uživajte u vašem novom domu. Dobrodošli, BM INVEST GROUP DOO Leskovac Kontakt. 0695009909 0691941111

Osnovne informacije

Broj soba 2
Lift Da
Povrsina 42 m2
Godina izgradnje 2023
Kuhinja Da
Garaza Ne
Basta Ne
Cena 55.440 EUR
Sprat 4
Namestaj Ne
Terasa Da
Ukupno spratova

Dodatno

  • Kuhinja
  • Terasa
  • Lift
Prodaje se dvosoban stan na četvrtom spratu u ulici Kraljevića Marka površine 42m2. Stan ima balkon. Prodaja stanova...