Na prodaju

SREMSKA KAMENICA, 72m2 plus dvorište 30m2, Trosoban sa pdv

159.500 EUR
Sremska Kamenica , Novi Sad , Južnobački okrug
Broj soba 3
Povrsina 72 m2
Sprat 1
Ukupno spratova 2

Opis

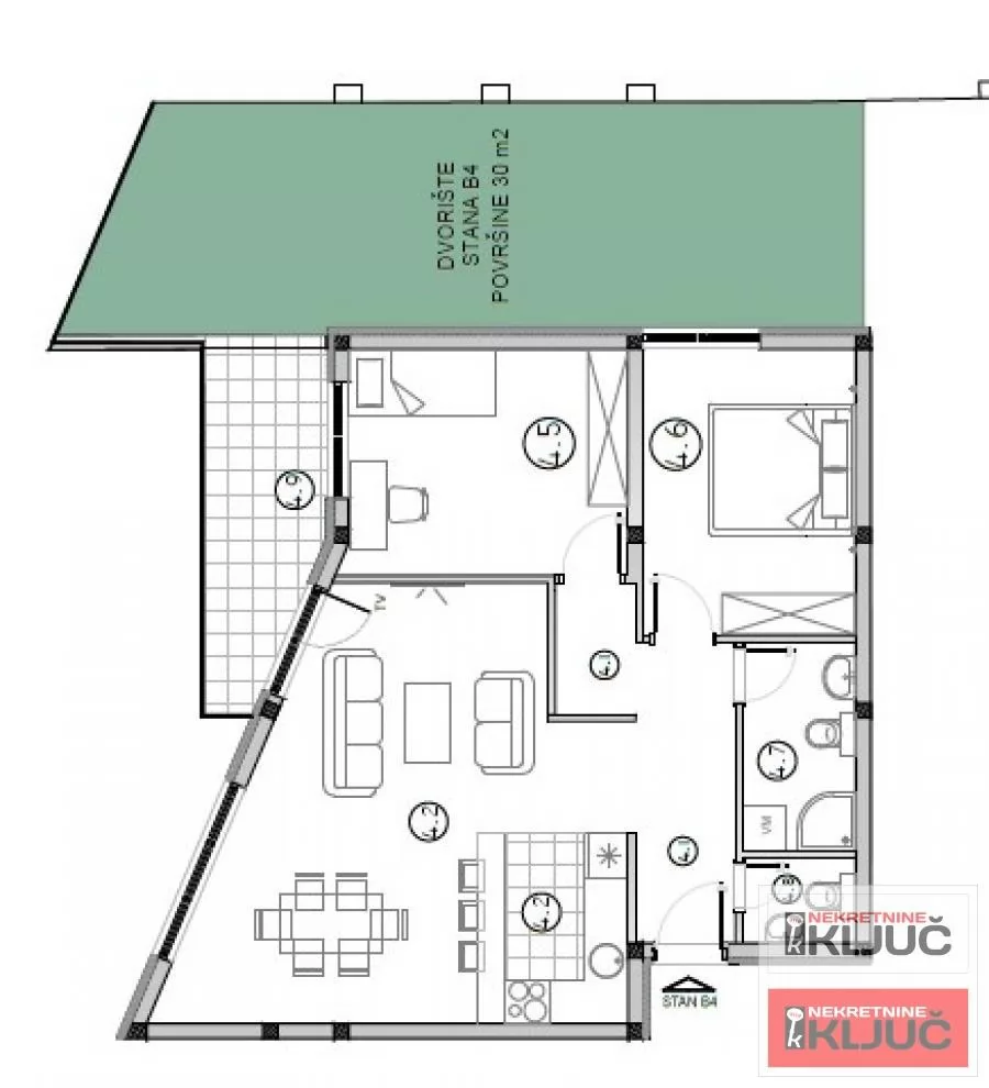
Prodaje se 3.0 stan u SREMSKOJ KAMENICI površine 72m2. Uz ovaj se dobija ograđeno dvorište oko 30m2. Iz stan se pruža prelep pogled na Novi Sad. Stan je u izgradnji i cena stana je sa pdv. Vrhunski kvalitet gradnje i opreme. Objekat je pozicioniran u mirnoj ulici nadomak glavnih saobračajnica. Odlično je povezan sa gradom. Stan je moguće kupiti i putem stambenog kredita. Miran koncept stanovanja. Stan zavređuje pažnju. Pozovite da pogledate.

Osnovne informacije

Broj soba 3
Lift Ne
Povrsina 72 m2
Godina izgradnje
Kuhinja Ne
Garaza Ne
Basta Ne
Cena 159.500 EUR
Sprat 1
Namestaj Ne
Terasa Ne
Ukupno spratova 2

Dodatno

Prodaje se trosoban stan na prvom spratu površine 72m2. Stan ima parking, terasu, etažno grejanje. Prodaja stanova...