Na prodaju

Prodajem komforan stan u najlepsem delu Zajecara

42.000 EUR
Zaječar , Zaječarski okrug
Broj soba 3
Povrsina 80 m2
Sprat 2
Ukupno spratova 8

Opis

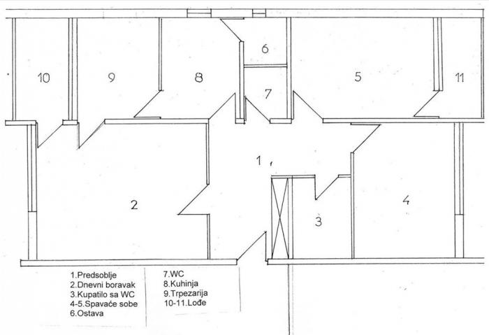
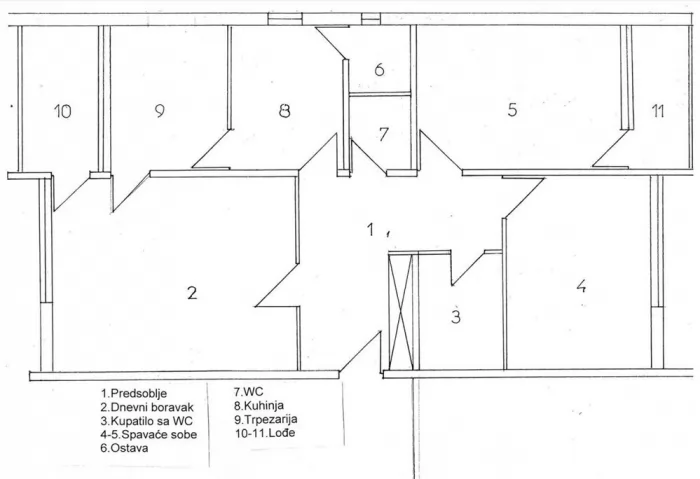
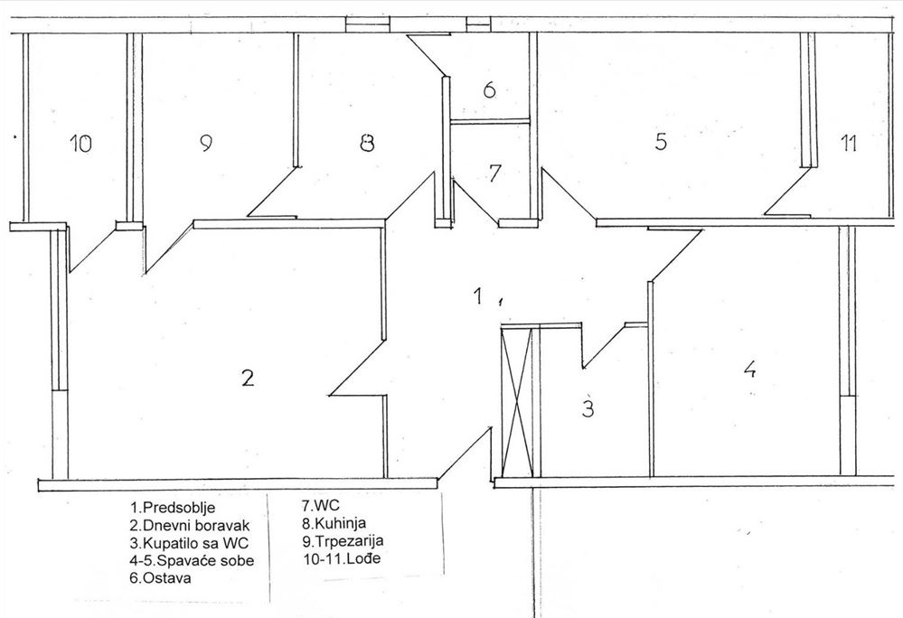
Prodajem super komforan stan u najlepšem delu Zaječara ispod park šume Kraljevica u istoimenom naselju Površina stana je 80 kvm od toga grejna površina 77kvm Stan ima dve terase jedna je zastakljena i boks u podrumu zgrade Stan se nalazi na drugom spratu U zgradi postoje lift i interfon a u stan su uvedeni kablovska TV i internet i klima uredjaj Uz stan prodaje se i zidana garaža 15kvm u istom naselju Cena garaze je 5000e 063 108 0686 019 430 116

Osnovne informacije

Broj soba 3
Lift Da
Povrsina 80 m2
Godina izgradnje
Kuhinja Ne
Garaza Ne
Basta Ne
Cena 42.000 EUR
Sprat 2
Namestaj Ne
Terasa Da
Ukupno spratova 8

Dodatno

  • Terasa
  • Lift
Prodaje se trosoban stan površine 80m2 u ulici Naselje Kraljevica na dugom spratu. Stan ima balkon. Prodaja stanova...