Na prodaju

Prodaja - porodična spratna kuća na Budžinom brdu

120.000 EUR
Budžino brdo , Jagodina , Pomoravski okrug
Broj soba 4
Povrsina 560.5 m2
Sprat Prizemlje
Ukupno spratova 3

Opis

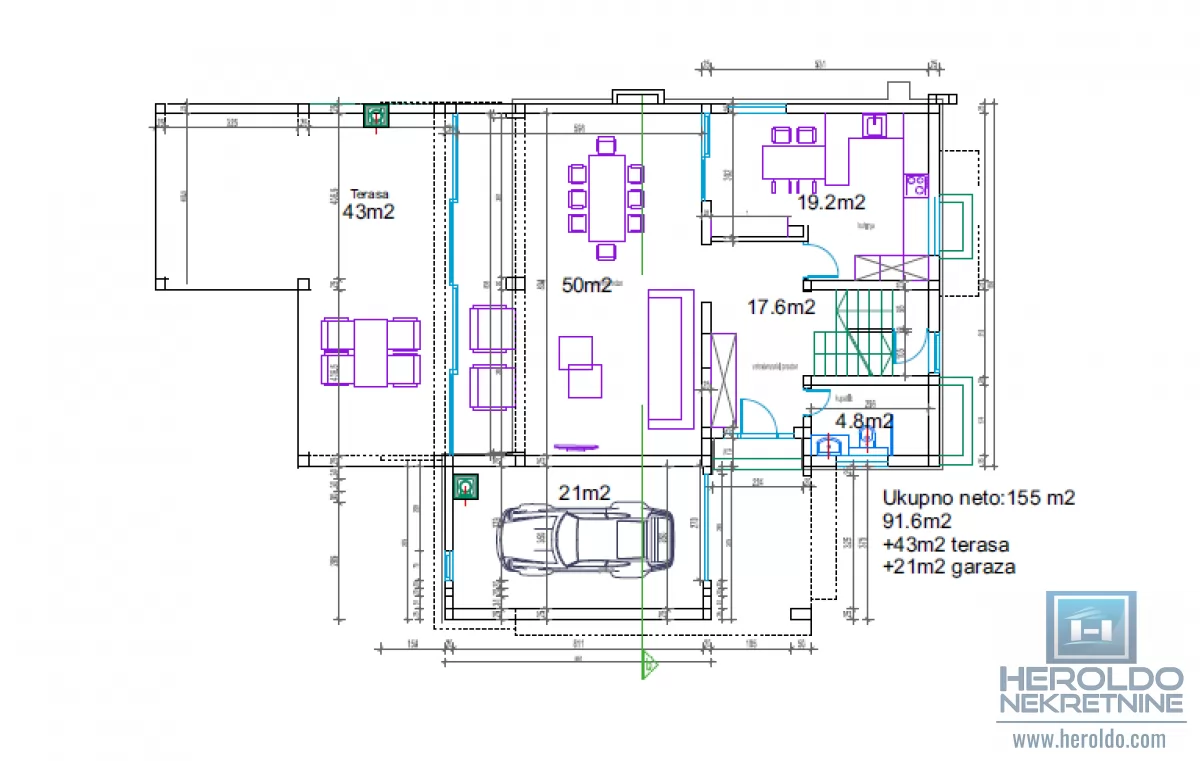
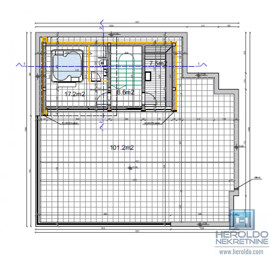
*** Na fotografijama je prikazano idejno rešenje porodično stambene zgrade *** * CENA 120.000 € važi samo za kupovinu objekta u zatečenom stanju - stavljen pod krov i završeni su svi grubi građevinski radovi. * Postoji mogućnost da se objekat završi po planiranom projektu (prikazan na renderima) od strane pouzdanog investitora, i to po principu ključ u ruke uz korekciju cene, u dogovoru sa investitorom. Projekat "ključ u ruke" je savršen izbor za izgradnju kuće prema Vašim zahtevima, bez dodatne brige za izgradnju i organizaciju majstora. - Neto površina objekta: 560.5m2 - Četirir etaže: podrum, prizemlje, sprat i povučeni sprat - U podrumskom delu površine 150m2 planirana je prostorija za rekreaciju površine 82.6m2, pomoćna kuhinja, kotlarnica, garderober i WC. - Prizemlje korisne površine 155m2 poseduje prostrani dnevni boravak 50m2, kuhinju sa trpezarijom 19.2m2 i kupatilo. Na istoj etaži nalazi se garaža u sklopu objekta površine 21m2 i komforna terasa za uživanje sa porodicom i prijateljima površine 43m2. - Na spratu stambenog obejkta planirano je uređenje više spavaćih soba, kotlarnice i dva kupatila. Uselite se u novi dom izgrađen po najsavremenijim standardima na najboljoj lokaciji za miran porodični život u Jagodini. Naša iskrena preporuka!

Osnovne informacije

Broj soba 4
Lift Ne
Povrsina 560.5 m2
Godina izgradnje
Kuhinja Ne
Garaza Da
Basta Ne
Cena 120.000 EUR
Sprat Prizemlje
Namestaj Ne
Terasa Ne
Ukupno spratova 3

Dodatno

Prodaje se kuću površine 560.5m2. Kuća ima garažu, terasu...