Na prodaju

Prodaja apartmana na Zlatiboru – Savršen spoj prirode i luksuza!

67.650 EUR
Zlatibor , Čajetina , Zlatiborski okrug
Broj soba 1
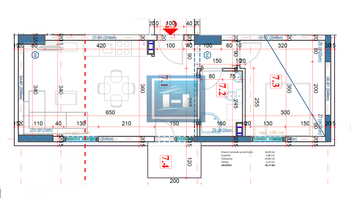
Povrsina 41 m2
Sprat 4
Ukupno spratova 7

Opis

Na jednoj od najlepših lokacija na Zlatiboru, u mirnom i zelenom okruženju, u toku je gradnja modernog kompleksa luksuznih apartmana. Planirani završetak gradnje je u prvoj polovini 2026. godine, što znači da ćete uskoro moći da uživate u svom novom domu na ovoj popularnoj planinskoj destinaciji. U ponudi se nalaze četiri nova apartmana, smeštena na četvrtom spratu. Apartmani su savršeno dizajnirani, sa funkcionalnim rasporedom, visokim standardima opreme i modernim enterijerom. Svaki apartman je osmišljen da pruži maksimalan komfor i udobnost. U pitanju su: Stan broj 22 – 33m² Stan broj 23 – 41m² Stan broj 24 – 33m² Stan broj 25 – 31m² Pored savremene gradnje, objekat se nalazi u neposrednoj blizini svih značajnih sadržaja – restorana, kafića, kao i pešačkih staza za ljubitelje prirode. Ne propustite priliku da postanete vlasnik apartmana na najlepšoj planinskoj destinaciji. Kontaktirajte nas za više informacija i rezervišite svoj apartman još danas! Za više informacija i dogovor oko obilaska, slobodno nas kontaktirajte putem navedenih brojeva telefona. 064-831-20-81 064/831-20-64 035/81-02-321 ili možete doći u agenciju Heroldo broj 1

Osnovne informacije

Broj soba 1
Lift Ne
Povrsina 41 m2
Godina izgradnje 2024
Kuhinja Ne
Garaza Ne
Basta Ne
Cena 67.650 EUR
Sprat 4
Namestaj Da
Terasa Ne
Ukupno spratova 7

Dodatno

  • Namestaj
Prodaje se jednosobnu kuću na četvrtom spratu površine 41m2