Na prodaju

PETROVARADIN-KARAGAČA, 116m2, Četvorosoban, Novogradnja

203.000 EUR
Petrovaradin , Novi Sad , Južnobački okrug
Broj soba 4
Povrsina 116 m2
Sprat 1
Ukupno spratova 2

Opis

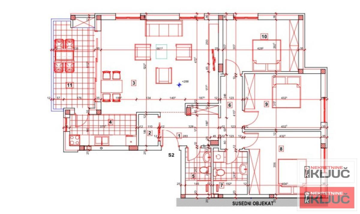
Prodaje se 4 stan u PETROVARADINU, KARAGAČA površine 116m2+terasa 16m2. Stan je nov, odmah useljiv. Mogučnost kupovine putem stambenog kredita. Odličan kvalitet opreme. Ostava uz stan. Garažno mesto u suterenu uz stan. Odlična komunikacija sa gradom. Zavređuje pažnju. Pozovite da pogledate.

Osnovne informacije

Broj soba 4
Lift Ne
Povrsina 116 m2
Godina izgradnje
Kuhinja Ne
Garaza Da
Basta Ne
Cena 203.000 EUR
Sprat 1
Namestaj Ne
Terasa Ne
Ukupno spratova 2

Dodatno

Prodaje se stan na prvom spratu površine 116m2. Stan ima garažu, terasu, grejanje na gas...