Na prodaju

PETROVARADIN, 87 m2, Trosoban može Troiposoban!

154.500 EUR
Petrovaradin , Novi Sad , Južnobački okrug
Broj soba 3
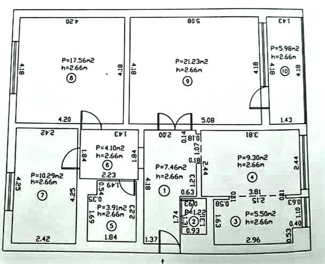
Povrsina 87 m2
Sprat 1
Ukupno spratova 4

Opis

Prodaje se lep, komforan,uknjižen 3 soban stan u PETROVARADINU, površine 87 m².U ceni ostaju skoro sve stvari.Dva mokra čvora.PVC prozori svugde osim u dnevnoj sobi.Parketi dobri. Odvojena kuhinja sa trpezarijom.Ostava u podrumu.Kvalitetna zgrada, dvostrana orijentacija sa puno zelenila.Veliki parking ispred zgrade.Dobra lokacija u blizini svih sadržaja za život.Miran kraj. Adaptibilan u troiposoban.U ceni je i agencijska usluga.Postoji mogućnost kupovine putem stambenog kredita. Zavređuje pažnju. Vredi pozvati i pogledati stan.

Osnovne informacije

Broj soba 3
Lift Ne
Povrsina 87 m2
Godina izgradnje
Kuhinja Ne
Garaza Ne
Basta Ne
Cena 154.500 EUR
Sprat 1
Namestaj Da
Terasa Ne
Ukupno spratova 4

Dodatno

  • Namestaj
Prodaje se trosoban stan površine 87m2 na prvom spratu. Stan ima terasu, centralno grejanje. Prodaja stanova...