Na prodaju

Petosobna kuća, 790 m2, Adamovićevo naselje ID: 130330

890.000 EUR
Adamovićevo naselje , Novi Sad , Južnobački okrug
Broj soba 5
Povrsina 790 m2
Sprat Prizemlje
Ukupno spratova 0

Opis

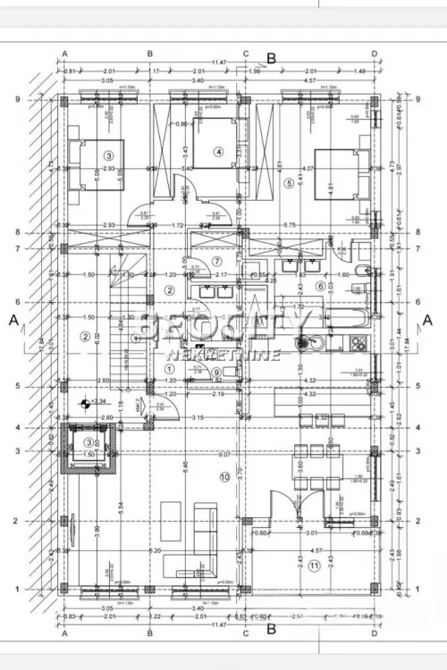
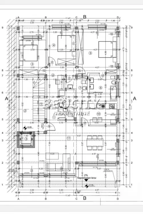
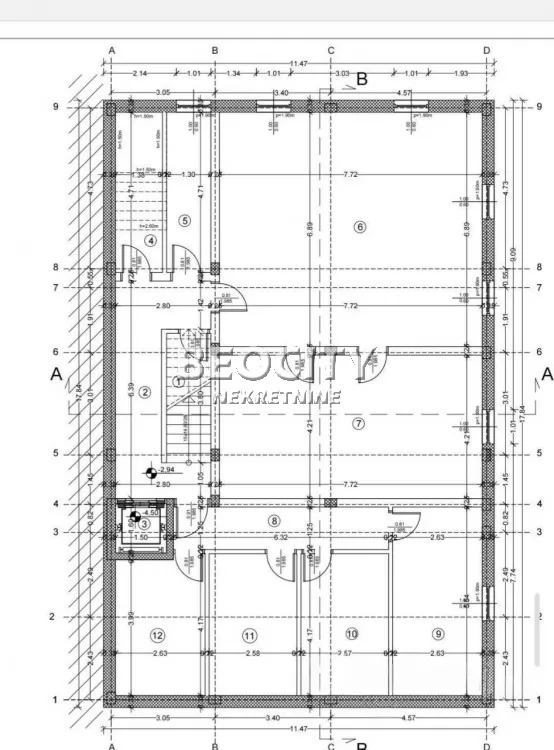
Agencijski ID: 130330, 6a, u izgradnji. *ZA INVESTITORE**ZA INVESTITORE* I FIZIČKA LICA OZIDANA ZGRADA, + GOTOV PROJEKAT 790 m2, bruto, Pr+1+Pk - ravan krov, u atraktivnom delu gde kvadrat gotovog stana dostize 4000e. PLAC 6 a. Prema projektu planirana su 3 STANA od 150 m2, svaki stan. Takodje, prema projektu svaki stan od 150 m2 moze biti podeljen na DVA STANA od po 75 m2, kao njegov idealni deo. UKUPNO 6 STANOVA OD 75 m2. LIFT - predvidjen projektom. Grejanje GAS, kanalizacija. IZUZETNA PRILIKA. Više informacija na: www.beocitynekretnine.rs Agencijska provizija 3%. Telefoni: 021/399-0210 • 060/399-0210. Kontakt van radnog vremena: kancelarija@beocitynekretnine.rs

Osnovne informacije

Broj soba 5
Lift Ne
Povrsina 790 m2
Godina izgradnje
Kuhinja Ne
Garaza Ne
Basta Ne
Cena 890.000 EUR
Sprat Prizemlje
Namestaj Ne
Terasa Ne
Ukupno spratova 0

Dodatno

Prodaje se kuću površine 790m2. Kuća ima grejanje na gas...