Na prodaju

Lokal,NOVI SAD,TELEP,kv: 208.00, € 445500, ID: 8089762

445.500 EUR
Telep , Novi Sad , Južnobački okrug
Broj soba 0
Povrsina 208 m2
Sprat Prizemlje
Ukupno spratova 0

Opis

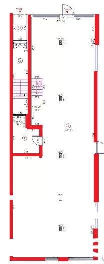
Agencijska oznaka lokala 8089762 , cena lokala je 450.500 e sa PDV om + 3% agencisjke provizije, Novi Sad, Telep, 208 m2, donji deo lokala je 140m2 a gornji 68m2. Gornji deo lokala može biti kompletno nezavistan, kao stan. Lokal se prodaje u sivoj fazi. Ulični lokal je u pitanju. Lokal uknjižen, kompletno čiste dokumentacije.... Kontakt Aleksandra Krnajski 0642003153

Osnovne informacije

Povrsina 208 m2
Basta Ne
Cena 445.500 EUR

Dodatno

Prodaje se površine 208m2