Na prodaju

Kuća, 560 m2, Grocka, Kolubarska ID: 88899

430.000 EUR
Grocka , Beograd
Broj soba 10
Povrsina 560 m2
Sprat Prizemlje
Ukupno spratova 0

Opis

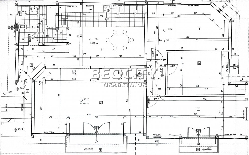
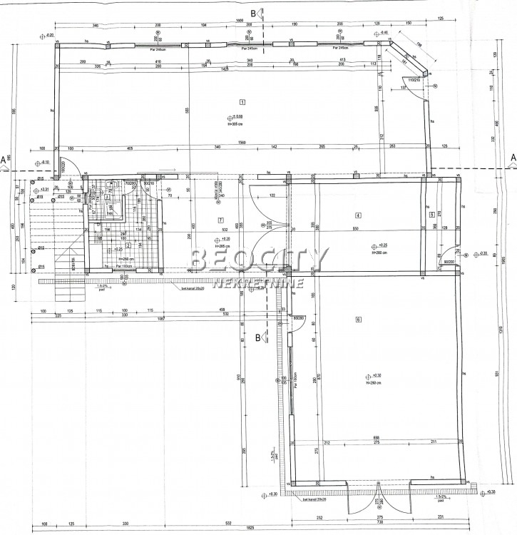
Agencijski ID: 88899, 5.1a, pr+i+pk, struja, kanalizacija, terasa, uknjižen, nov, novogradnja, garaza, parking, dvorište/bašta, može zamena(), pogodan za pp, deljiv, cela. Mogućnost završetka radova po želji kupca. Više informacija na: www.beocitynekretnine.rs Telefoni: 060/328-3901 • 060/555-9720 • 011/328-3901. Kontakt van radnog vremena: kancelarija@beocitynekretnine.rs

Osnovne informacije

Broj soba 10
Lift Ne
Povrsina 560 m2
Godina izgradnje
Kuhinja Ne
Garaza Ne
Basta Ne
Cena 430.000 EUR
Sprat Prizemlje
Namestaj Ne
Terasa Da
Ukupno spratova 0

Dodatno

  • Terasa
Prodaje se kuću površine 560m2 u ulici Kolubarska. Kuća ima balkon. Prodaja kuća...