Na prodaju

KLISA, 71m2, Troiposoban sa pdv

133.900 EUR
Klisa , Novi Sad , Južnobački okrug
Broj soba 3.5
Povrsina 71 m2
Sprat 1
Ukupno spratova 2

Opis

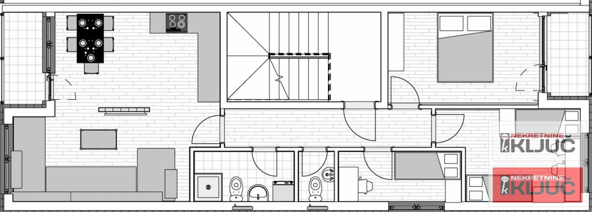
Prodaje se 3.5 stan u NOVOM SADU, KLISA površine 71m2. Stan je brzo useljiv. Cena stana sa pdv. Mogučnost kupovine putem stambenog kredita. Stan je izuzetno funkcionalan. Dvostrano orijentisan. Dva mokra čvora, dve terase. Mirna ulica u blizini Najlon pijace. Manji objekat sa svega nekoliko stambenih jedinica. Stan zavređuje pažnju. Pozovite da pogledate.

Osnovne informacije

Broj soba 3.5
Lift Ne
Povrsina 71 m2
Godina izgradnje
Kuhinja Ne
Garaza Ne
Basta Ne
Cena 133.900 EUR
Sprat 1
Namestaj Ne
Terasa Ne
Ukupno spratova 2

Dodatno

Prodaje se trosoban stan površine 71m2 na prvom spratu. Stan ima terasu, grejanje na gas...