Na prodaju

Jednosoban stan, 36.83 m2, Sokobanja ID: p-09529

62.650 EUR
Broj soba 1
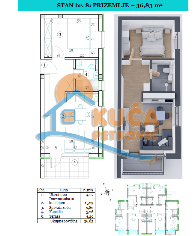
Povrsina 36.83 m2
Sprat Prizemlje
Ukupno spratova 3

Opis

Na prodaju jednoiposoban stan apartmanskog tipa u izgradnji, u stambenom objektu SU+P+II+PK, u Sokobanji. Stan je projektovane povšine 36.83m2 i sastoji se od ulaznog hodnika, dnevne sobe sa kuhinjom i trpezarijom, spavaće sobe, kupatila i terase. Ova struktura nalazi se u prizemlju. Zgrada ispunjava sve najnovije standarde izgradnje, kvalitetna Veka PVC stolarija u antracit boji sa roletnama i four season staklima, kupatilo i kuhinja sa prvoklasnom podnom i zidnom keramikom, kvalitetan parket tarket debljine 14mm koji je fabricki lakiran otporan na habanje. U stanovima se postavljaju norveški radijatori i klima. Uz stan ide pripadajuće parking mesto. Završetak radova je predviđen krajem 2024. godine. Cena stana je 62.650EUR-a, sa povraćajem PDV-a za kupce koji ostvaruju pravo na oslobođenje. Ovo je samo deo naše ponude, ovaj kao i druge stanove sa većim brojem fotografija možete pogledati na našem sajtu..

Osnovne informacije

Broj soba 1
Lift Da
Povrsina 36.83 m2
Godina izgradnje
Kuhinja Ne
Garaza Ne
Basta Ne
Cena 62.650 EUR
Sprat Prizemlje
Namestaj Ne
Terasa Da
Ukupno spratova 3

Dodatno

  • Terasa
  • Lift
Prodaje se jednosoban stan površine 36.83m2 u ulici Sokobanja. Stan ima balkon...