Na prodaju

Gradjevinsko zemljiste u Vrdniku

1 EUR
Vrdnik , Fruška gora , Sremski Karlovci , Južnobački okrug
Broj soba 0
Povrsina 6308 m2
Sprat Prizemlje

Opis

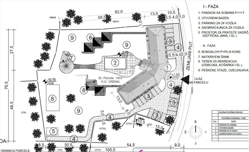
Plac, povrsine 6308 kvadrata, se nalazi u srcu nacionalnog parka Fruske Gore na nadmorskoj visini 360 m. Dozvoljeno je graditi stambeno poslovni objekat spratnosti P 3 PK na osnovu informacije o lokaciji dobijene od sluzbe za zastite zivotne sredine i urbanizma Dozvoljen indeks zauzetosti parcele u osnovi je 50 posto od velicine placa sto znaci da se moze graditi cca 12000 kvadrata stambenog i poslovnog prostora. Panorama Star DOO, firma u mom vlasnistvu, poseduje idejni projekat pansiona 1200 kvadrata bungalovi, bazen i otvoreni bar 850 kvadrata. Za idejni projekat ovog kompleksa su dobijeni urbanisticko tehnicki uslovi. Na placu je uradjena busotina bunara termalne vode do 405 m gde je pronadjena termalna voda, cca 32 stepena. Busotina nije zavrsena. Posedujemo sve potrebne dozvole sto se tice gradjevinskog projekta i busotine termalne vode. Dodatne informacije na https banemilosavljev.wixsite.com panoramastar Kontakt 063514984

Osnovne informacije

Povrsina 6308 m2
Basta Da
Cena 1 EUR

Dodatno

  • Basta
Prodaje se u ulici Morintovo površine 6308m2balkon. Prodaja...