Na prodaju

Dvosoban stan, 54.44 m2, Pantelej, Kosovke Devojke ID: p-015695

119.768 EUR
Pantelej , Niš , Nišavski okrug
Broj soba 2
Povrsina 54.44 m2
Sprat 1
Ukupno spratova 4

Opis

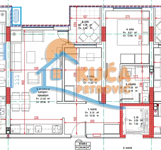
Luksuzan objekat u samom srcu Panteleja! Stambeni objekat po+pr+4 od 35 stambenih jedinica. U ponudi odličan, dvoiposoban stan 54.44m2 u izgradnji, na 1.spratu, u jedinstvenom objektu, koji se sastoji od ulaznog hodnika, prostrane dnevne sobe sa trpezarijom, uvučene kuhinje, dve spavaće sobe, kupatila i lođe na koju se izlazi iz dnevne sobe. Stakleni portali od poda do plafona prema terasi pružaju otvoren pogled, kao i odlično prirodno osvetljenje u prostoriji. Izuzetna funkcionalnost stanova i vrhunski kvalitet ugradjenih materijala i opreme je ono što izdvaja ovaj objekat i čini ga pravim izborom za Vas. Aluminijum prozori visokog kvaliteta sa šestokomornim staklima i alu roletnama, tarket parket vrhunskog kvaliteta, keramika premium kvaliteta, na terasi granitne pločice, sigurnosna vrata , etažno i podno grejanje. Parking poseduje punjače za električne automobile. Bešumni lift. Zgrada će biti izgrađena na placu od 15a, sa 35 stanova ( različitih kvadratura od 35m2 do 67m2), što pruža posebnu pogodnost zajedničkog velikog dvorišta , uredjeno stazama, rasvetom, parking mestom za bicikle, motore, kao i zelenom površinom koja će Vam pružiti prave trenutke opuštanja Video nadzor i interfon Vam pružaju neophodnu sigurnost. Povraćaj PDV-a za kupce prvog stana. U prizemlju objekta je predviđen natkriveni parking prostor sa tri parking mesta, dok je na parceli planirano još njih 38. Rok za završetak objekta je do kraja 2027.god. godine. Ovo je samo deo naše ponude, ovaj kao i druge stanove sa većim brojem fotografija možete pogledati na našem sajtu.

Osnovne informacije

Broj soba 2
Lift Da
Povrsina 54.44 m2
Godina izgradnje
Kuhinja Ne
Garaza Ne
Basta Ne
Cena 119.768 EUR
Sprat 1
Namestaj Ne
Terasa Da
Ukupno spratova 4

Dodatno

  • Terasa
  • Lift
Prodaje se dvosoban stan u ulici Kosovke Devojke površine 54.44m2 na prvom spratu. Stan ima balkon, etažno grejanje...