Na prodaju

Dvosoban stan, 53 m2, Surčin, Autoput za Zagreb ID: 130498

98.050 EUR
Surčin , Beograd
Broj soba 1.5
Povrsina 53 m2
Sprat 1
Ukupno spratova 0

Opis

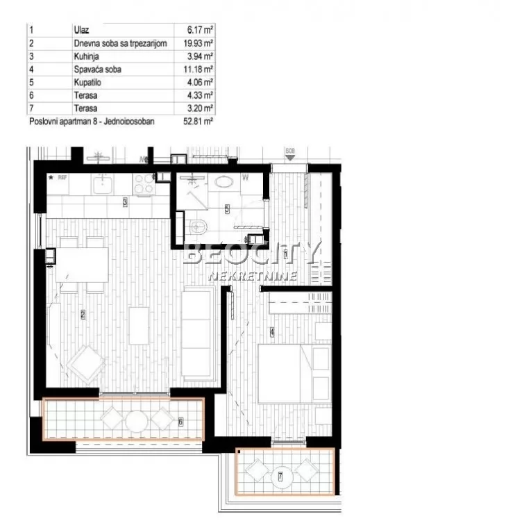
Agencijski ID: 130498, I/. Prodaja stanova u novogradnji – Radio Far, Surčin U ponudi je moderan stambeno-poslovni kompleks u izgradnji, smešten u mirnom i perspektivnom delu naselja Radio Far, u opštini Surčin. Projekat obuhvata tri lamele, pažljivo osmišljene kako bi zadovoljile potrebe kako za stanovanjem, tako i za poslovanjem. Lamela 1 i Lamela 2 projektovane su kao poslovni apartmani, dok je Lamela 3 namenjena isključivo stanovanju. U ponudi su funkcionalni stanovi površine od 28 m² do 64 m², idealni kako za život, tako i kao investicija. Objekat se sastoji od prizemlja, prvog , drugog,treceg sprata, i cetvrtog povučenog sprata, što obezbeđuje moderan izgled i dodatni komfor stanarima. Kompleks se nalazi na izuzetno atraktivnoj lokaciji: • udaljen svega 500 metara od aerodroma • u ulici Svetog Save, iza Autokomerca • u neposrednoj blizini Zagrebačkog autoputa • na samo 5 km od Zemuna i 10 km od centra Beograda • dobro povezan autobuskim linijama gradskog prevoza U neposrednoj blizini nalaze se prodavnice, uključujući market „Sunce“, kao i manji lokalni objekti, što dodatno doprinosi svakodnevnoj praktičnosti. Kupcima su na raspolaganju parking i garažna mesta: • parking mesto: 6.500 € + PDV • garažno mesto: 15.000 € + PDV Cene nekretnina: • poslovni apartmani: 1.850 €/m² + 20% PDV • stanovi: 1.850 €/m² + 10% PDv Ovaj kompleks predstavlja odličnu priliku za sve koji traže kvalitetnu novogradnju na dobro povezanoj lokaciji, sa brzim pristupom gradu, ali i mirnim okruženjem za život. Zavrsetak prve lamele decembar2026,a kraj je jun 2027 više informacija i rezervaciju stana,kontaktirajte nas. Više informacija na: www.beocitynekretnine.rs Agencijska provizija 2%. Telefoni: 060/555-3901 • 011/328-3901. Kontakt van radnog vremena: kancelarija@beocitynekretnine.rs

Osnovne informacije

Broj soba 1.5
Lift Ne
Povrsina 53 m2
Godina izgradnje
Kuhinja Ne
Garaza Ne
Basta Ne
Cena 98.050 EUR
Sprat 1
Namestaj Ne
Terasa Ne
Ukupno spratova 0

Dodatno

Prodaje se dvosoban stan površine 53m2 u ulici Autoput za Zagreb na prvom spratu