Na prodaju

Dvosoban stan, 46.06 m2, Trošarina, Marina Držića ID: p-014289

80.610 EUR
Trošarina , Palilula , Nišavski okrug
Broj soba 2
Povrsina 46.06 m2
Sprat 3
Ukupno spratova 3

Opis

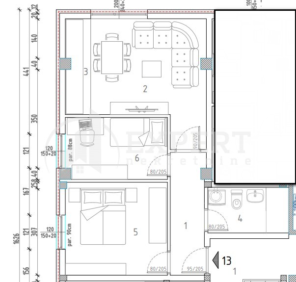
Na prodaju stan u izgradnji u stambenoj zgradi PO+PR+3, sa 14 stambenih jedinica. Zgrada se nalazi u mirnoj ulici na Trošarini u blizini osnovne škole, obdaništa, PMF-a, Bogoslovije... Odlična investicija, kako za stanovanje, tako i za izdavanje. Stan je po strukturi dvoiposoban, površine 46,06m2. Sastoji se od hodnika, dnevne sobe sa kuhinjom i trpezarijom, dve spavaće sobe i kupatila. Stan se nalazi na trećem spratu zgrade sa liftom. Na podovima je parket, u kuhinji i kupatilu kvalitetna keramika, PVC stolarija sa roletnama, grejanje i hlađenje inverter klimama. Završetak radova predviđen je za 01.10.2026. godine. Parking mesta u dvorištu i podzemnoj garaži se naknadno naplaćuju. Objekat je u fazi rekonstrukcije i izgradnje, tako da će pojedine stambene jedinice imati određeni procenat povraćaja PDV-a za kupce prvog stana. Ovo je samo deo naše ponude, za više informacija javite se i posetite naš sajt.

Osnovne informacije

Broj soba 2
Lift Da
Povrsina 46.06 m2
Godina izgradnje
Kuhinja Ne
Garaza Ne
Basta Ne
Cena 80.610 EUR
Sprat 3
Namestaj Ne
Terasa Ne
Ukupno spratova 3

Dodatno

  • Lift
Prodaje se dvosoban stan na trećem spratu u ulici Marina Držića površine 46.06m2