Na prodaju

Central Residence Zlatibor

101.000 EUR
Zlatibor , Čajetina , Zlatiborski okrug
Broj soba 2
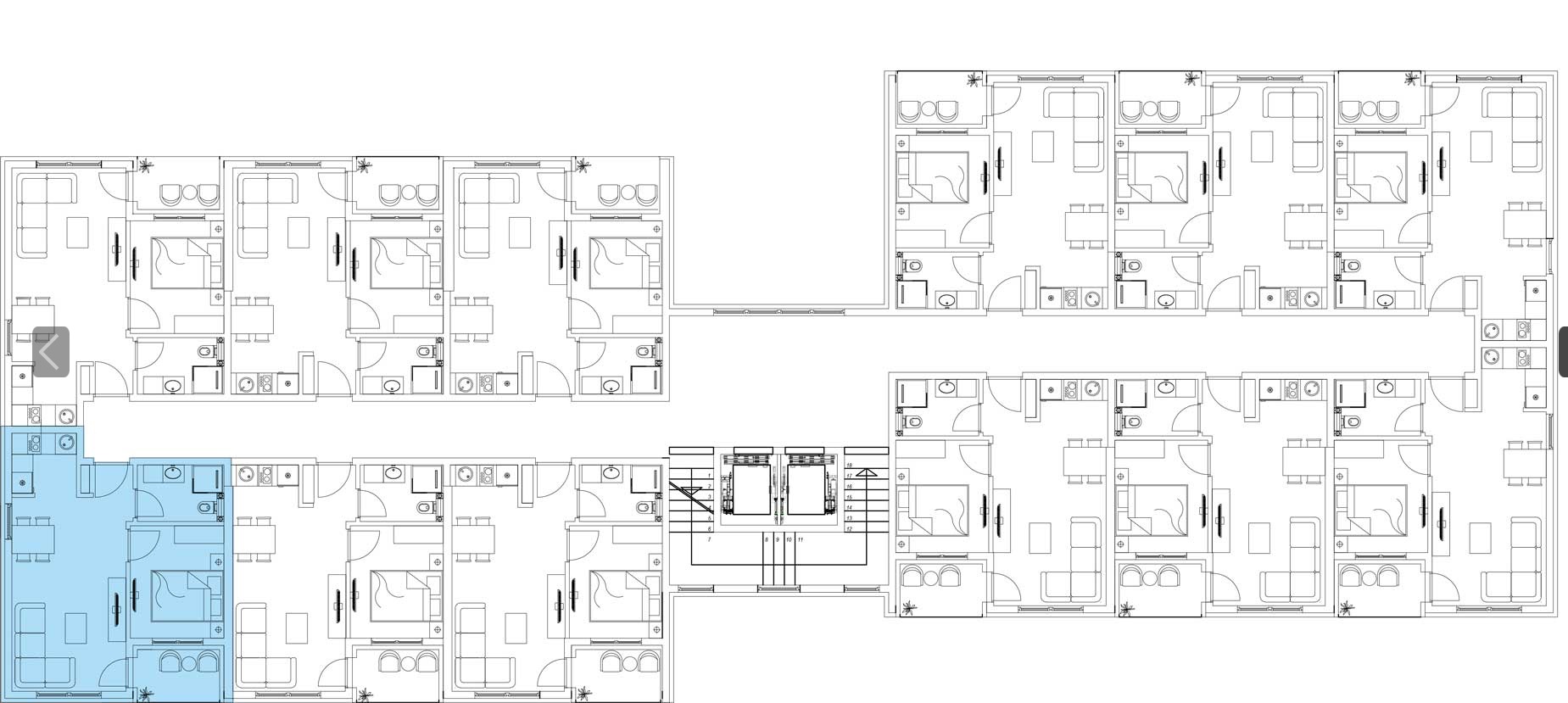
Povrsina 37 m2
Sprat 2
Ukupno spratova 8

Opis

Central Residence zgrada u samom srcu Zlatibora, preko puta hotela Mona, na ugodnih 1000 metara nadmorske visine odakle se pruža najlepši pogled, i gde su sve najposećenije turističke atrakcije Zlatibora na dohvat ruke. U objektu će biti recepcija pa ukoliko želite da izdajete apartman imaćete uslugu primanja i odjave Vaših gostiju, kao i izdavanje Vaših apartmana kroz recepeciju. U objektu će biti SPA centar sa raznovrsnom ponudom relaksacije koja se sastoji od đakuzija, turskog kupatila, saune, tapidariijuma, slanog zida i bazena. Apartman se nalazi na drugom spratu i dvostrano je orjentisan, sa odličnim pogledom bez prepreka, a zbog postojanja garaže, prizemlja, i visokog prizemlja, utisak je kao da se nalazite na 4. 5. spratu okrenut suprotno od ulaza u zgradu . U dvorištu zgrade predviđen je privatni parking za vlasnike apartmana i goste. Apartman će biti potpuno luksuzno opremljen, uskoro nove fotografije, za više informacija pozovite.

Osnovne informacije

Broj soba 2
Lift Da
Povrsina 37 m2
Godina izgradnje 2023
Kuhinja Ne
Garaza Ne
Basta Ne
Cena 101.000 EUR
Sprat 2
Namestaj Ne
Terasa Da
Ukupno spratova 8

Dodatno

  • Terasa
  • Lift
Prodaje se dvosoban stan u ulici Drinske divizije na dugom spratu površine 37m2. Stan ima balkon. Prodaja stanova...