Na prodaju

BLIZINA NAJLON PIJACE, 86m2, Četvorosoban-Duplex sa pdv

154.500 EUR
Klisa , Novi Sad , Južnobački okrug
Broj soba 4
Povrsina 86 m2
Sprat Prizemlje
Ukupno spratova 1

Opis

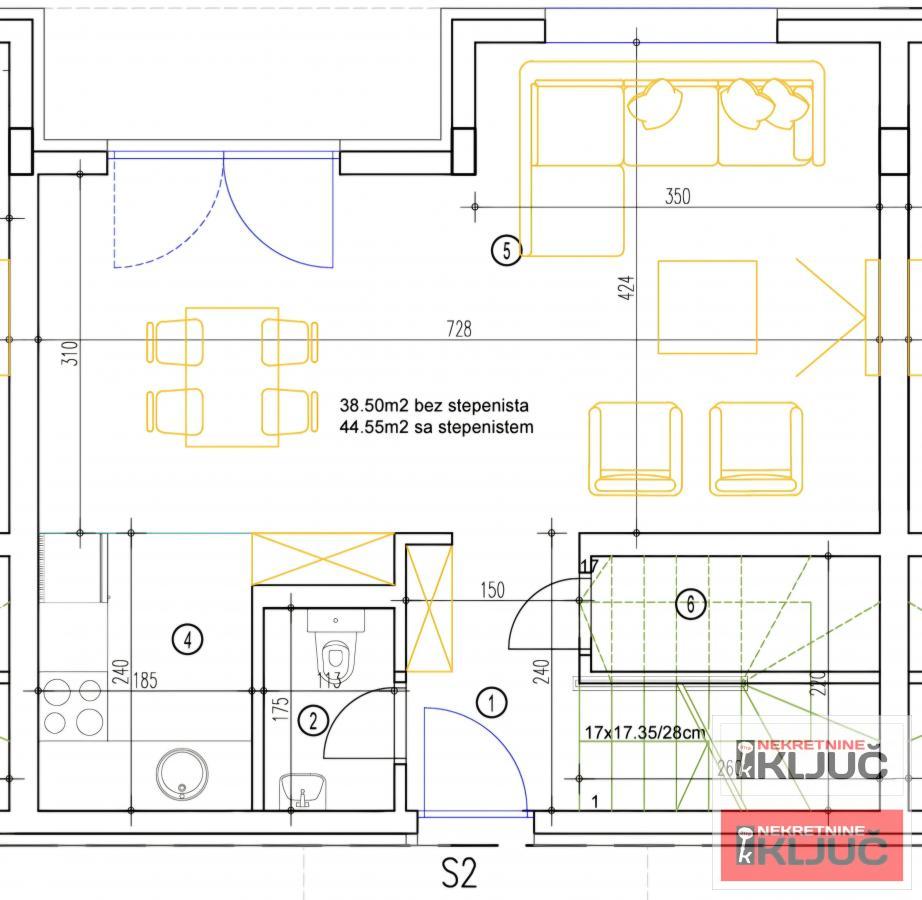
Prodaje se 4 stan u NOVOM SADU, kod NAJLON PIJACE površine 86m2. Stan je u izgradnji, tipski duplex bez kosina sa parking mestom i dvorištem. Cena stana sa pdv. Manji objekat sa svega tri stambene jedinice. Nalazi se u blizini Najlon pijace. Svi ostali sadržaji su u blizini. Odlično je povezan sa glavnom saobračajnicom Temerinska ulica. Škola, Vrtić, market nadomak stana. Zavređuje pažnju. Pozovite...

Osnovne informacije

Broj soba 4
Lift Ne
Povrsina 86 m2
Godina izgradnje
Kuhinja Ne
Garaza Ne
Basta Ne
Cena 154.500 EUR
Sprat Prizemlje
Namestaj Ne
Terasa Ne
Ukupno spratova 1

Dodatno

Prodaje se stan površine 86m2. Stan ima parking, terasu, grejanje na gas. Prodaja stanova...