Na prodaju

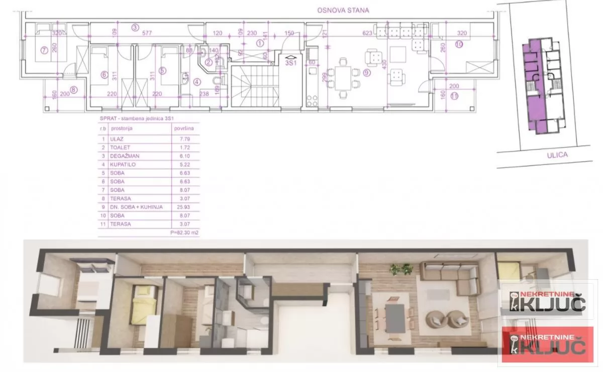
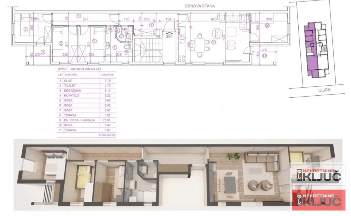
ADICE, 82m2, Četvorosoban sa pdv

143.600 EUR
Adice , Novi Sad , Južnobački okrug
Broj soba 4
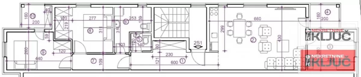
Povrsina 82 m2
Sprat 1
Ukupno spratova 2

Opis

Prodaje se 4.0 stan u NOVOM SADU, ADICE površine 82m2. Stan je u izgradnji. Cena stana sa pdv. Mirna ulica. Dobro povezan sa glavnim saobraćajnicama. Izuzetno je funkcionalan. Porodičan stan. Stan zavređuje pažnju. Pozovite da pogledate.

Osnovne informacije

Broj soba 4
Lift Ne
Povrsina 82 m2
Godina izgradnje
Kuhinja Ne
Garaza Ne
Basta Ne
Cena 143.600 EUR
Sprat 1
Namestaj Ne
Terasa Ne
Ukupno spratova 2

Dodatno

Prodaje se stan na prvom spratu površine 82m2. Stan ima terasu, etažno grejanje...