Na prodaju

ADICE, 44m2, Dvosoban sa pdv

88.400 EUR
Adice , Novi Sad , Južnobački okrug
Broj soba 2
Povrsina 44 m2
Sprat 2
Ukupno spratova 2

Opis

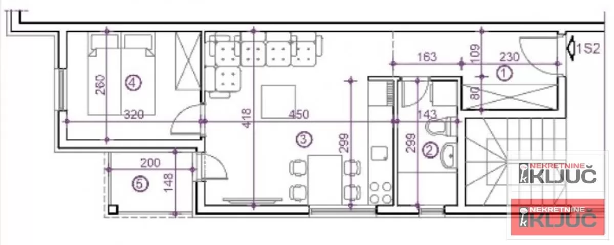
Prodaje se 2.0 stan u NOVOM SADU, ADICE površine 44m2. Stan je u izgradnji. Cena sa pdv..Mirna ulica. Dobro povezan sa glavnim saobraćajnicama. Stan zavređuje pažnju. Pozovite da pogledate.

Osnovne informacije

Broj soba 2
Lift Ne
Povrsina 44 m2
Godina izgradnje
Kuhinja Ne
Garaza Ne
Basta Ne
Cena 88.400 EUR
Sprat 2
Namestaj Ne
Terasa Ne
Ukupno spratova 2

Dodatno

Prodaje se dvosoban stan površine 44m2 na dugom spratu. Stan ima terasu...